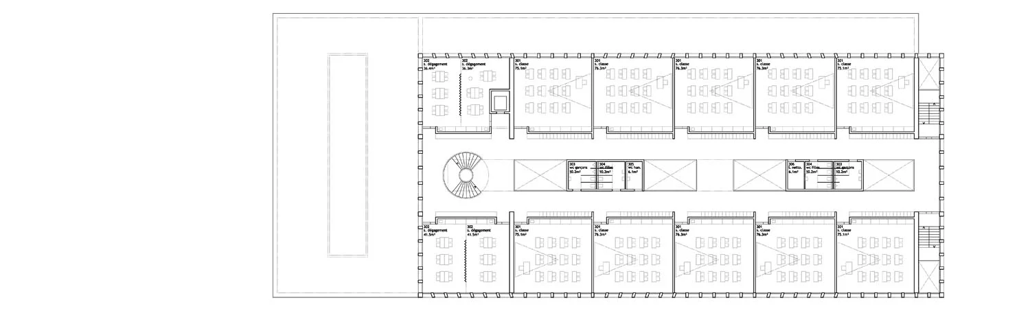
GUSTAVE COURBET NEW SCHOOL COMPLEX | Municipality of La Tour-de-Peilz | La Tour-de-Peilz, Switzerland
Competition 2016 | In collaboration with M Vilo Bach and Jesús Javier Lorenzo-Garvín
GUSTAVE COURBET NEW SCHOOL COMPLEX | Municipality of La Tour-de-Peilz | La Tour-de-Peilz, Switzerland
Competition 2016 | In collaboration with M Vilo Bach and Jesús Javier Lorenzo-Garvín