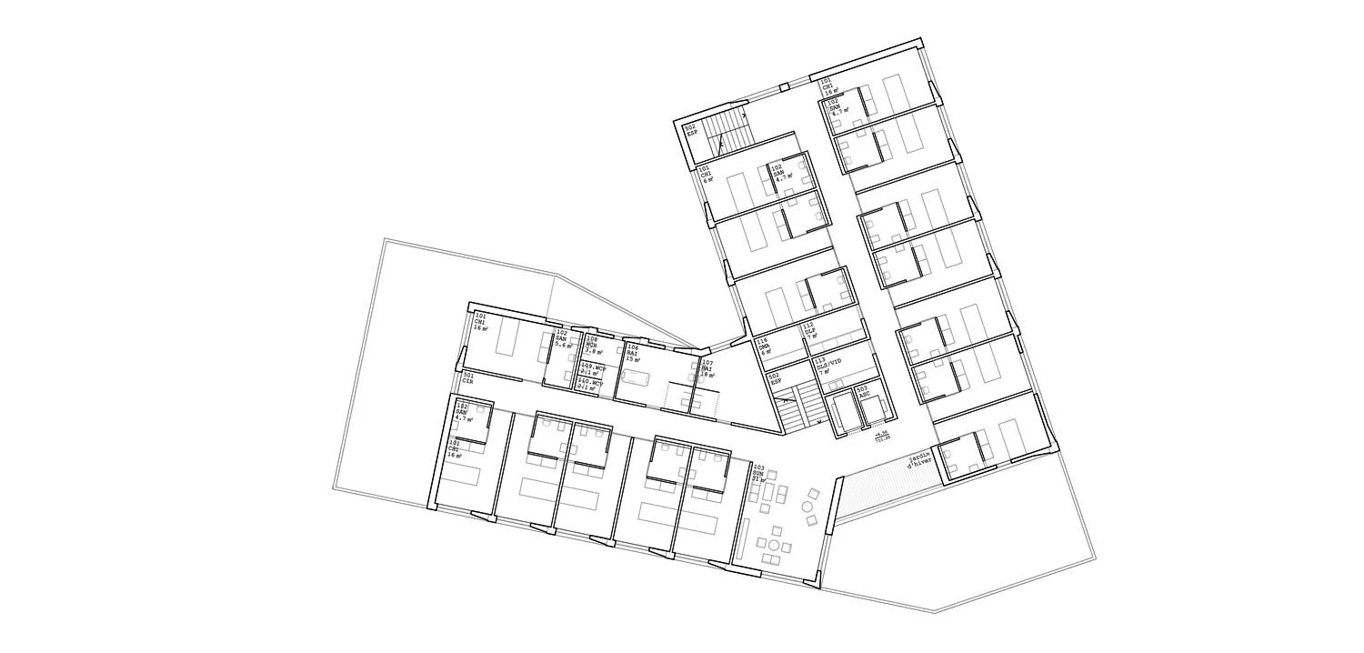
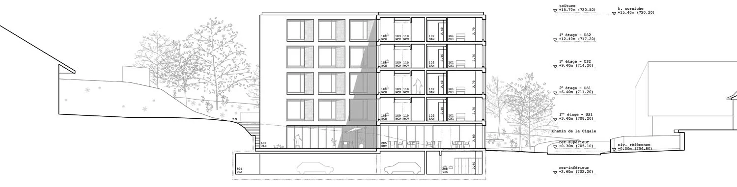
LA CIGALE NURSING HOME | Le Marronnier Home Nursing Foundation | Lausanne, Switzerland
Competition 2016 | In collaboration with Javier Martín and Alejandro Montesinos
LA CIGALE NURSING HOME | Le Marronnier Home Nursing Foundation | Lausanne, Switzerland
Competition 2016 | In collaboration with Javier Martín and Alejandro Montesinos