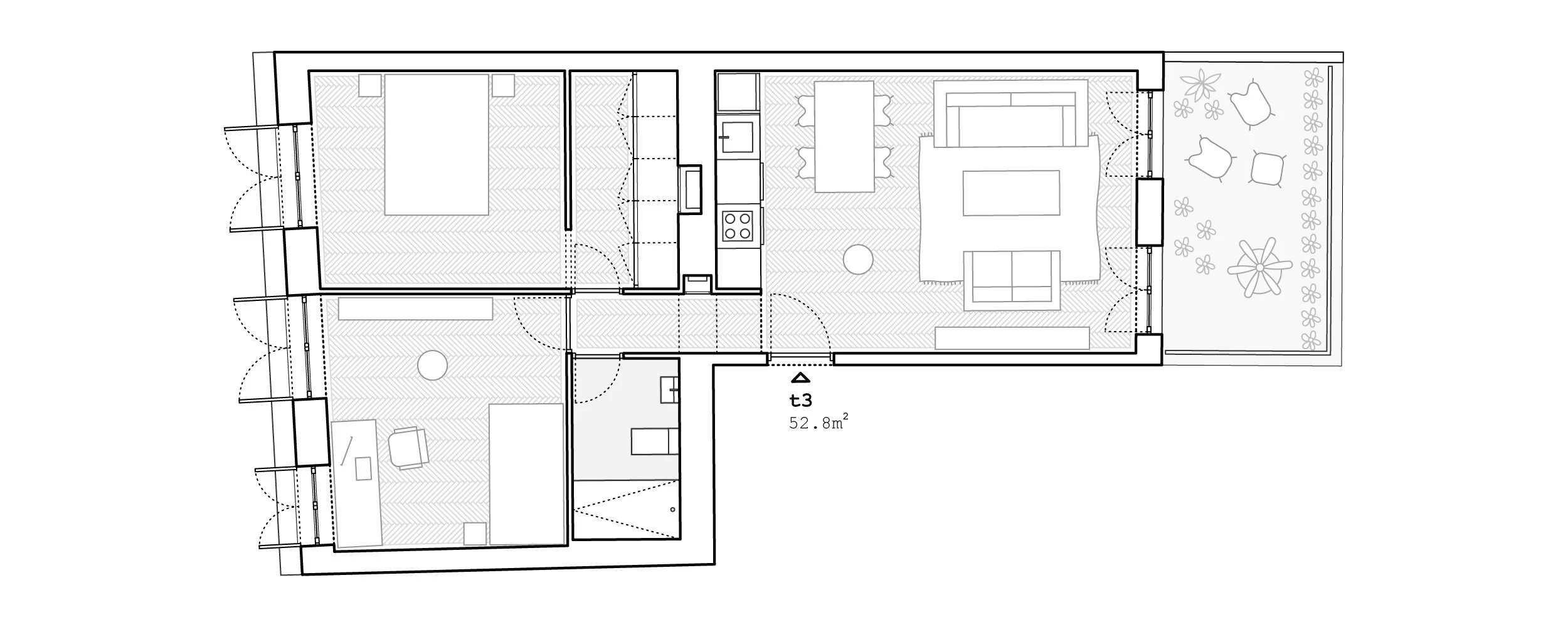
REFURBISHMENT OF A TWO BEDROOM APARTMENT IN SAINT-DENIS | Private commission | Saint-Denis, France
Completed in 2020 | In collaboration with Alberto Morao
© Photo credits Rodrigo Apolaya
REFURBISHMENT OF A TWO BEDROOM APARTMENT IN SAINT-DENIS | Private commission | Saint-Denis, France
Completed in 2020 | In collaboration with Alberto Morao
© Photo credits Rodrigo Apolaya